OPORTUNIDADE IMPERDÍVEL EM VALPARAÍSO DE GOIÁS
Melhor custo-benefício da região!
Unidade no Bloco A do Condomínio Colinas VII, totalmente reformada e pronta para morar. Ideal para quem busca conforto, economia e excelente localização.
• Aceitamos financiamento bancário.
• IPTU: Exercício 2026 já quitado
• Condomínio: R$ 83,24 (pagamento até dia 15)
________________________________________
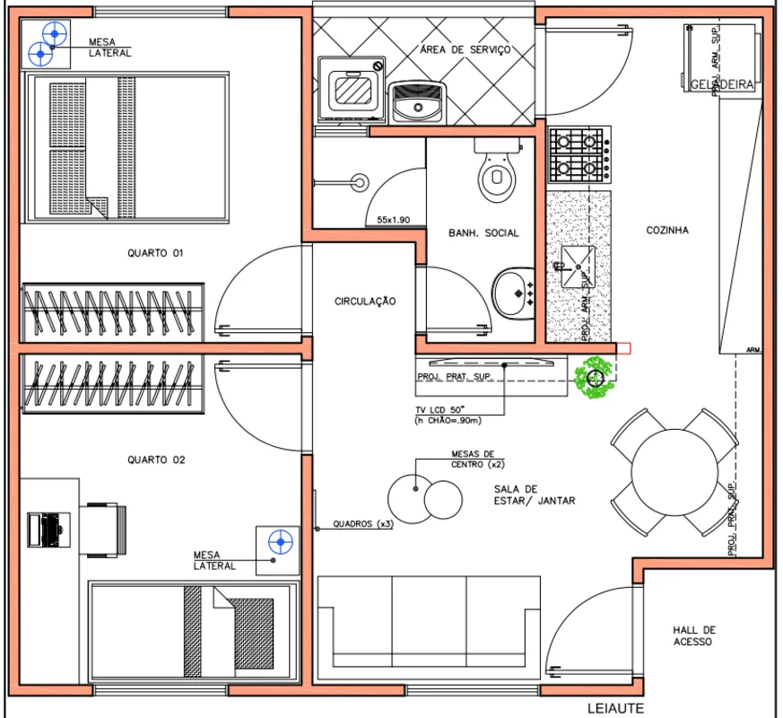
Detalhes do Apartamento – 43,13m² bem distribuídos
• Sala
• 2 quartos
• Banheiro
• Cozinha
• Área de serviço
• Todos os ambientes com piso em cerâmica retificada
• Cozinha funcional com bancada em inox
• Área de serviço isolada com porta de vidro temperado
• Banheiro completo com box blindex e chuveiro
• 01 vaga de garagem
__________________________________________
Condomínio e Localização
• Segurança com câmeras
• Parquinho
• Quadra infantil
• Próximo de centros comerciais, consultórios, academias, supermercados, escolas, entre outros
• Apenas 2 km da BR-040
Entre em contato para mais informações e agende sua visita.
Excelente oportunidade para morar ou investir com o melhor custo-benefício de Valparaíso de Goiás.
Não esqueça de informar que viu o imóvel 1307532 no 62imoveis.com
Conect Negócios Imobiliários
Creci: 30158
Simule seu crédito e aproveite os benefícios do Banco do Brasil
Aviso: A realização do financiamento estará sujeita à análise e aprovação, pelo Banco do Brasil, da situação cadastral do cliente e das condições de regularidade documental e estrutural do imóvel.
Envie sua crítica que iremos entrar em contato com o responsável pelo imóvel anunciado para que ele verifique e atualize a informação.
Solicitar Agendamento
Lembrando que deve ser solicitado com, no mínimo, 24 HORAS DE ANTECEDÊNCIA. Aguarde CONFIRMAÇÃO da visita
Enviar Proposta
Preencha o formulario para envio da sua proposta e aguarde um retorno.
Indicar este imóvel por E-mail
Envie as informações deste imóvel para alguém que você acredita que vai se interessar
Selo IMÓVEL SEGURO: O anunciante deste imóvel Conect Negócios Imobiliários enviou ao a Certidão de Ônus do imóvel, o número de sua inscrição no IPTU e os CPF(s) ou CNPJ(s) do(s) proprietário(s). O Cartório, gratuitamente, emitiu e analisou as certidões necessárias para a concretização do negócio e constatou que NÃO existe restrição que impeça a lavratura da escritura pública. A análise não é a específica para financiamento imobiliário do imóvel.
Disclaimer (Aviso de ressalva legal):
1. O SELO IMÓVEL SEGURO não engloba a análise de eventuais débitos condominiais que, por não terem sido consultados, deverão ser verificados pelo interessado antes do fechamento do negócio.
2. É do CORRETOR DE IMÓVEIS e da IMOBILIÁRIA a responsabilidade técnica pela intermediação de negócios imobiliários, nos termos da legislação aplicável.
3. O somente se responsabiliza pela análise dos documentos e informações que foram efetivamente submetidos à sua análise e que são requisitos à lavratura da competente escritura pública, não se responsabilizando por quaisquer outras informações ou restrições que possam impedir a negociação do imóvel.
4. O 62imoveis.com é provedor de conteúdo de terceiros, nos termos da Lei nº 12.965/2014, não se responsabilizando por qualquer informação divulgada pelos CORRETORES e IMOBILIÁRIAS ou por eles repassadas ao , nem pela concessão ou negativa de concessão do selo.
Antes de continuar…
Informe seus dados para um atendimento rápido e personalizado.
Antes de continuar...
Dados preenchidos automaticamente. Ao clicar em Continuar, serão enviados à Alugue Sem Fiador (ASF) e ao anunciante para análise.
Para alterá-los, acesse Meu Perfil › Configurações.
Preencha seus dados para prosseguir. Ao clicar em Continuar, serão enviados à Alugue Sem Fiador (ASF) e ao anunciante para análise.
Acesse seu login para gerenciá-los futuramente.
Análise enviada com sucesso!
Sua solicitação foi enviada para a Alugue Sem Fiador. Em breve (em dias e horário comercial), entraremos em contato via e-mail e/ou WhatsApp. Importante: para liberar sua análise, é necessário realizar a biometria facial, um processo rápido e seguro para validação do cadastro. Se preferir, fale conosco pelo WhatsApp (61) 9999-3720.
Usamos cookies para personalizar, coletar dados e melhorar sua experiência em nosso site. Ao continuar navegando, entendemos que você está ciente e concorda com nossa Política de Privacidade e Política de Cookies.