Este imóvel é um lote localizado no bairro Sítio de Recreio Mansões Bernardo Sayão, em Goiânia. O lote possui uma área total de 1250m². As comodidades disponíveis no local incluem abastecimento de água, asfalto e rede elétrica.O condomínio onde o lote está situado oferece uma série de características. Há uma área de lazer, acesso para pessoas com deficiência, área pet, área verde e bicicletário. Além disso, o condomínio conta com um campo de futebol, churrasqueira, serviço de guarda entrega, guarita e jardim. Para as crianças, há um playground. A segurança é garantida por uma portaria que funciona 24 horas por dia e vigilância também 24 horas. Para os amantes do esporte, o condomínio oferece uma quadra poliesportiva e uma quadra de beach tênis. O condomínio também possui uma recepção e todas as suas ruas são pavimentadas.Em relação à localização, o imóvel está próximo a diversos pontos de interesse. Há um atacadista, clubes, lojas de conveniência, farmácias, uma praça, restaurantes e supermercados nas proximidades.Convidamos você a conhecer este imóvel e explorar todas as possibilidades que ele oferece.
Ver mais
Características
Guarita
Jardim
PlayGround
Quadra Esportiva
Ver mais
Algum problema com este imóvel?Critique esse anúncio
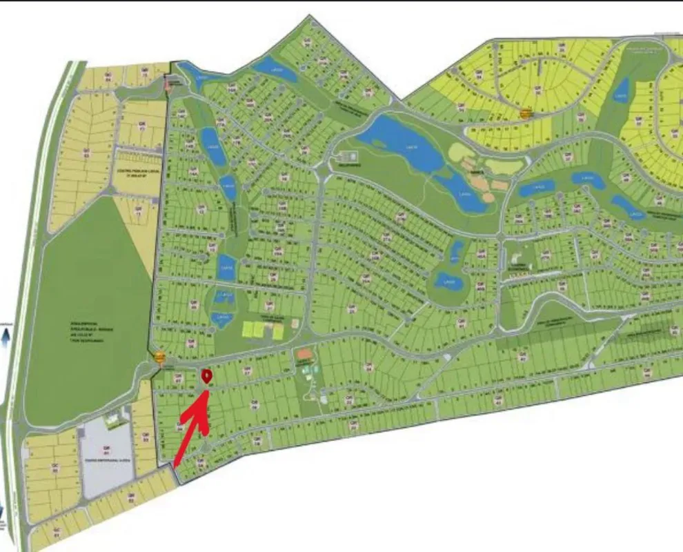
Localização
GO - GOIANIA - SITIO DE RECREIO MANSOES BERNARDO SAYAO - AVENIDA FLORESTA
Não esqueça de informar que viu o imóvel VN33887 no 62imoveis.com
Centro de Gestão Adão
Creci: 4436
Simule seu crédito e aproveite os benefícios do Banco do Brasil
Aviso: A realização do financiamento estará sujeita à análise e aprovação, pelo Banco do Brasil, da situação cadastral do cliente e das condições de regularidade documental e estrutural do imóvel.
Envie sua crítica que iremos entrar em contato com o responsável pelo imóvel anunciado para que ele verifique e atualize a informação.
Solicitar Agendamento
Lembrando que deve ser solicitado com, no mínimo, 24 HORAS DE ANTECEDÊNCIA. Aguarde CONFIRMAÇÃO da visita
Enviar Proposta
Preencha o formulario para envio da sua proposta e aguarde um retorno.
Indicar este imóvel por E-mail
Envie as informações deste imóvel para alguém que você acredita que vai se interessar
Selo IMÓVEL SEGURO: O anunciante deste imóvel Centro de Gestão Adão enviou ao a Certidão de Ônus do imóvel, o número de sua inscrição no IPTU e os CPF(s) ou CNPJ(s) do(s) proprietário(s). O Cartório, gratuitamente, emitiu e analisou as certidões necessárias para a concretização do negócio e constatou que NÃO existe restrição que impeça a lavratura da escritura pública. A análise não é a específica para financiamento imobiliário do imóvel.
Disclaimer (Aviso de ressalva legal):
1. O SELO IMÓVEL SEGURO não engloba a análise de eventuais débitos condominiais que, por não terem sido consultados, deverão ser verificados pelo interessado antes do fechamento do negócio.
2. É do CORRETOR DE IMÓVEIS e da IMOBILIÁRIA a responsabilidade técnica pela intermediação de negócios imobiliários, nos termos da legislação aplicável.
3. O somente se responsabiliza pela análise dos documentos e informações que foram efetivamente submetidos à sua análise e que são requisitos à lavratura da competente escritura pública, não se responsabilizando por quaisquer outras informações ou restrições que possam impedir a negociação do imóvel.
4. O 62imoveis.com é provedor de conteúdo de terceiros, nos termos da Lei nº 12.965/2014, não se responsabilizando por qualquer informação divulgada pelos CORRETORES e IMOBILIÁRIAS ou por eles repassadas ao , nem pela concessão ou negativa de concessão do selo.
Antes de continuar…
Informe seus dados para um atendimento rápido e personalizado.
Usamos cookies para personalizar, coletar dados e melhorar sua experiência em nosso site. Ao continuar navegando, entendemos que você está ciente e concorda com nossa Política de Privacidade e Política de Cookies.