Excelente Oportunidade Comercial no Setor Central de Anápolis-GO!
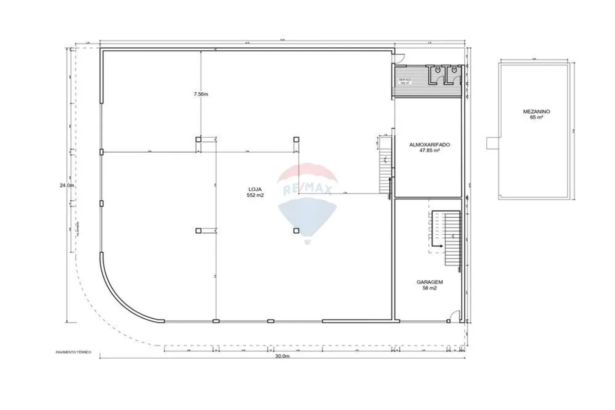
Apresentamos um ponto comercial único e bem localizado, na Rua Barão do Rio Branco, no coração do Setor Central de Anápolis-GO. Com uma área de 552 m² este imóvel oferece amplos espaços e uma infraestrutura de qualidade, pronta para abrigar seu negócio ou até mesmo servir como residência.
No térreo, você encontrará um almoxarifado de 47,85 m², dois banheiros, área de serviço e um balcão bem grande, ideal para diversos tipos de comércio, como loja, escritório ou showroom. A área foi pensada para oferecer praticidade e conforto para sua operação.
No piso superior, o imóvel conta com dois apartamentos, sendo um delessuíte plena. Além disso, há um hall de entrada que serve os quartos, sala de TV, sala de jantar e uma sala de estar de 39,94 m², proporcionando um ambiente espaçoso e acolhedor. O imóvel ainda conta com escritório, cozinha, área de serviço, dois pátios e suíte de serviço.
Com um hall social, banheiro social e garagem para 3 carros, o imóvel foi projetado com armários planejados, piso cerâmico e revestimentos em azulejos antigos, todos muito bem conservados e de excelente gosto, garantindo conforto e praticidade para qualquer tipo de negócio ou moradia.
Além disso, a varanda em L atende os dois pavimentos superiores, proporcionando uma vista privilegiada e um espaço agradável para momentos de lazer e convivência.
Localização privilegiada, com fácil acesso a diversos pontos comerciais, serviços e infraestrutura urbana, torna este imóvel uma oportunidade imperdível para quem busca investir em um ponto comercial ou até mesmo para quem deseja morar no centro de Anápolis com todo o conforto e comodidade.
Agende sua visita e conheça de perto esse imóvel de alto potencial!
Ver mais
Características
Ver mais
Algum problema com este imóvel?Critique esse anúncio
Localização
GO - ANAPOLIS - SETOR CENTRAL - Rua BARAO DO RIO BRANCO
Não esqueça de informar que viu o imóvel 721991046-107 no 62imoveis.com
RE/MAX GARRA
Creci: 20407
Simule seu crédito e aproveite os benefícios do Banco do Brasil
Aviso: A realização do financiamento estará sujeita à análise e aprovação, pelo Banco do Brasil, da situação cadastral do cliente e das condições de regularidade documental e estrutural do imóvel.
Envie sua crítica que iremos entrar em contato com o responsável pelo imóvel anunciado para que ele verifique e atualize a informação.
Solicitar Agendamento
Lembrando que deve ser solicitado com, no mínimo, 24 HORAS DE ANTECEDÊNCIA. Aguarde CONFIRMAÇÃO da visita
Enviar Proposta
Preencha o formulario para envio da sua proposta e aguarde um retorno.
Indicar este imóvel por E-mail
Envie as informações deste imóvel para alguém que você acredita que vai se interessar
Selo IMÓVEL SEGURO: O anunciante deste imóvel RE/MAX GARRA enviou ao a Certidão de Ônus do imóvel, o número de sua inscrição no IPTU e os CPF(s) ou CNPJ(s) do(s) proprietário(s). O Cartório, gratuitamente, emitiu e analisou as certidões necessárias para a concretização do negócio e constatou que NÃO existe restrição que impeça a lavratura da escritura pública. A análise não é a específica para financiamento imobiliário do imóvel.
Disclaimer (Aviso de ressalva legal):
1. O SELO IMÓVEL SEGURO não engloba a análise de eventuais débitos condominiais que, por não terem sido consultados, deverão ser verificados pelo interessado antes do fechamento do negócio.
2. É do CORRETOR DE IMÓVEIS e da IMOBILIÁRIA a responsabilidade técnica pela intermediação de negócios imobiliários, nos termos da legislação aplicável.
3. O somente se responsabiliza pela análise dos documentos e informações que foram efetivamente submetidos à sua análise e que são requisitos à lavratura da competente escritura pública, não se responsabilizando por quaisquer outras informações ou restrições que possam impedir a negociação do imóvel.
4. O 62imoveis.com é provedor de conteúdo de terceiros, nos termos da Lei nº 12.965/2014, não se responsabilizando por qualquer informação divulgada pelos CORRETORES e IMOBILIÁRIAS ou por eles repassadas ao , nem pela concessão ou negativa de concessão do selo.
Antes de continuar…
Informe seus dados para um atendimento rápido e personalizado.
Usamos cookies para personalizar, coletar dados e melhorar sua experiência em nosso site. Ao continuar navegando, entendemos que você está ciente e concorda com nossa Política de Privacidade e Política de Cookies.