Obra Avançada com Projeto de Alto Padrão, uma residência com estrutura sólida já edificada e pronta para receber os seus acabamentos dos sonhos.
A etapa mais pesada e demorada já foi vencida. Com a laje e cobertura encaminhadas, você economiza meses de cronograma e assume um projeto moderno, assinado e com excelente aproveitamento de espaço.
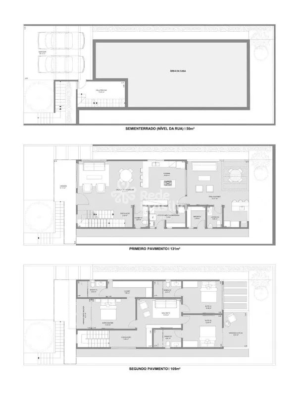
Destaques do Imóvel:
Área Total: 296,4m² de construção inteligente.
Pavimento Superior: 3 suítes amplas (suíte master com closet e varanda privativa) + Sala de TV íntima.
Pavimento Térreo: Conceito aberto com sala de estar/jantar integrada, cozinha com ilha e uma área gourmet espetacular para receber amigos.
Garagem: Espaço semienterrado para 4 carros com hall de entrada privativo.
Não compre apenas um lote, compre tempo e segurança construtiva. O projeto futuro (conforme o render) prevê uma fachada imponente e moderna que será referência na rua.
O Condominio:
Com distancia de 6km do solarium mais conhecido como chifrudo
30 km do Aeroporto
30 km do Park Shopping
Muro Perimetral com 3m de Altura
Portaria com Monitoramento Eletrônico e Controle de Acesso
Mais de 76 mil m² de áreas verdes
93 lotes comerciais Integrados ao empreendimento
O Imóvel poderá sofrer alterações no valor sem aviso prévio.
Agende uma visita e veja de perto a qualidade da fundação e das paredes já erguidas!
RBM Imobiliaria Ligue Agora
Ver mais
Ficou alguma dúvida sobre este imóvel?
Dados deste imóvel
Publicado há:25 dias
Visualizações:125
Venda de Casa Condominio Padrão
Código:RM2169
IPTU R$:
595
Área Total:
250,00 m²
Acesse informações exclusivas da análise de mercado com o Estatísticas 62i!
Evolução do Preço
Estimativa do Mercado
Valor médio:
Preço do m²:
Imóvel
Valor do imóvel:R$ 550.000
Preço do m²:
R$ 1.855
Faixa de Preço m² na Região
Características
Lavabo
Ver mais
Algum problema com este imóvel?Critique esse anúncio
Não esqueça de informar que viu o imóvel RM2169 no 62imoveis.com
RBM imobiliária
Creci: 21693
Simule seu crédito e aproveite os benefícios do Banco do Brasil
Aviso: A realização do financiamento estará sujeita à análise e aprovação, pelo Banco do Brasil, da situação cadastral do cliente e das condições de regularidade documental e estrutural do imóvel.
Envie sua crítica que iremos entrar em contato com o responsável pelo imóvel anunciado para que ele verifique e atualize a informação.
Solicitar Agendamento
Lembrando que deve ser solicitado com, no mínimo, 24 HORAS DE ANTECEDÊNCIA. Aguarde CONFIRMAÇÃO da visita
Enviar Proposta
Preencha o formulario para envio da sua proposta e aguarde um retorno.
Indicar este imóvel por E-mail
Envie as informações deste imóvel para alguém que você acredita que vai se interessar
Selo IMÓVEL SEGURO: O anunciante deste imóvel RBM imobiliária enviou ao a Certidão de Ônus do imóvel, o número de sua inscrição no IPTU e os CPF(s) ou CNPJ(s) do(s) proprietário(s). O Cartório, gratuitamente, emitiu e analisou as certidões necessárias para a concretização do negócio e constatou que NÃO existe restrição que impeça a lavratura da escritura pública. A análise não é a específica para financiamento imobiliário do imóvel.
Disclaimer (Aviso de ressalva legal):
1. O SELO IMÓVEL SEGURO não engloba a análise de eventuais débitos condominiais que, por não terem sido consultados, deverão ser verificados pelo interessado antes do fechamento do negócio.
2. É do CORRETOR DE IMÓVEIS e da IMOBILIÁRIA a responsabilidade técnica pela intermediação de negócios imobiliários, nos termos da legislação aplicável.
3. O somente se responsabiliza pela análise dos documentos e informações que foram efetivamente submetidos à sua análise e que são requisitos à lavratura da competente escritura pública, não se responsabilizando por quaisquer outras informações ou restrições que possam impedir a negociação do imóvel.
4. O 62imoveis.com é provedor de conteúdo de terceiros, nos termos da Lei nº 12.965/2014, não se responsabilizando por qualquer informação divulgada pelos CORRETORES e IMOBILIÁRIAS ou por eles repassadas ao , nem pela concessão ou negativa de concessão do selo.
Antes de continuar…
Informe seus dados para um atendimento rápido e personalizado.
Usamos cookies para personalizar, coletar dados e melhorar sua experiência em nosso site. Ao continuar navegando, entendemos que você está ciente e concorda com nossa Política de Privacidade e Política de Cookies.